Планировка

Уяр-78

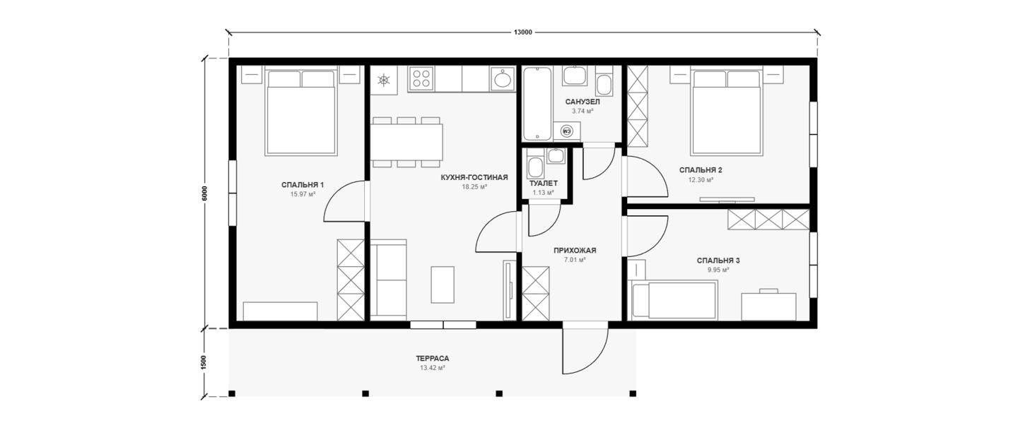
Площадь помещений 78 м²
Этажность 1 этаж
Спальни 3
Санузлы 1
Габариты 13 × 6 м
Высота потолков 2.7 м
Терраса 12 м²
Стоимость
от 2 811 000 ₽
Под ключ — 5 865 000 ₽ · ипотека от 28 100 ₽/мес
Позвонить

Одноэтажный дом с тремя спальнями и линейной планировкой. Кухня-гостиная 18,25 м² с удобным зонированием, раздельный санузел, прихожая 7 м². Компактная терраса 13,4 м² у входа.

Планировка Уяр-78
Бесплатно

Адаптируем
планировку для вас

По вашему запросу бесплатно доработаем планировку. Увеличим или уменьшим площадь, изменим расположение комнат, добавим санузел, террасу и так далее.

Изменить проект

Три варианта комплектации

Каждый следующий уровень включает предыдущий. Выберите подходящий — или соберём индивидуально.

Напишите нам
Ответим в мессенджер

Тёплый контур

Готовая коробка дома

01

Фундамент, стены из СИП-панелей, крыша с металлочерепицей, пластиковые окна и входная дверь. Дом утеплён и защищён от непогоды — можно начинать внутренние работы.

Стоимость
2 811 000 ₽

С инженерией

Коробка + все коммуникации

02

Всё из тёплого контура плюс электрика, отопление, водоснабжение и канализация. Разводка по всему дому, розетки, радиаторы, тёплый пол в санузле. Останется только отделка.

Стоимость
4 197 000 ₽

С отделкой

Заезжай и живи

03

Полностью готовый дом. Ламинат, покраска стен, натяжные потолки, плитка в санузле. Установлена сантехника, смесители, межкомнатные двери. Фасад отделан, крыльцо с навесом.

Стоимость
5 865 000 ₽

Как выглядит внутри

Реальные фото сданного дома. Чистовая отделка, натяжные потолки, трековый свет, керамогранит на полу.

Гостиная
Гостиная
Коридор
Коридор
Санузел
Санузел
Спальня
Спальня
Прихожая
Прихожая
Электрика
Электрика

Похожие проекты

Другие дома в похожей площади. Не нашли подходящий — спроектируем под вас.

Все проекты →

Платим ипотеку,
пока строим дом

Оформим семейную ипотеку за 1 день. Платежи на период строительства — за наш счёт.

от 6% ставка
28 100 ₽/мес
0 ₽ пока строим
Рассчитать ипотеку
Напишем в мессенджер с расчётом

Свяжитесь с нами обсудим ваш дом

Напишем в мессенджер, ответим на вопросы и запишем на встречу

Напишите нам
Ответим в мессенджер
г. Красноярск
ул. 26 Бакинских Комиссаров, 8
Офис 418 · Встречи по записи
+7 (391) 272-69-93
Звоните, ответим на любые вопросы
Офис
г. Красноярск, ул. 26 Бакинских Комиссаров, 8
Офис 418, 4 этаж
Встречи по предварительной записи
Режим работы
Пн — Пт 9:00 — 18:00
Суббота 10:00 — 15:00
Воскресенье выходной
ООО «СК Медведь»
ОГРН 1202400028555 · ИНН 2465322168